(+34) 633 958 952     info@maderarey.es
Viviendas  |  Casetas  |  Cabañas  |  Garajes  |  Tejas y Pintura  |  Energías

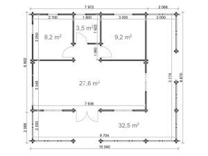
Vivienda Oscar 68mm. 8,8×10

Dimensiones
8,8 x 10

Grosor de madera
68mm

Precio
21700€

Descripción

la casa de abeto nórdico muy amplia y acogedor, con terraza en forma L. El mismo modelo se ofrece con paredes de 44mm - 16700 €

Características

OscarOscar_3d2Oscar_plan