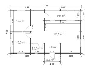
Descripción
Una casa muy cómoda y grande. Base del suelo de madera de autoclave. Grosor del suelo y techo-19 mm.de madera machihembrada. ventanas-oscilabatiente,con climalit. No incluido-el porte,teja,barniz,tornilleria,montaje. Montaje-2400 € mas IVA (montaje KIT,montaje teja asfáltica,,tornilleria,aplicación 2 manos de barniz a las paredes exteriores,si el producto a base de agua ).La estancia de los montadores corre a cargo del cliente.
El mismo modelo con pared 44mm. -16500 €
Características







