Descripción
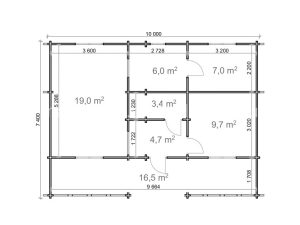
Una casa muy grande. Base del suelo de madera de autoclave. Con gran terraza. Grosor del suelo y techo-19 mm.de madera machihembrada. ventanas-oscilabatiente,con climalit. El mismo modelo con pared 44mm. -15000 €
. Montaje- a consultar
Características


